Decoding the Code

Your Building Code Questions Answered

Carl A. Nelson & Company offers expertise in code study and analysis for clients, both current and prospective. We highlight that expertise for readers in our newsletter, wibi. This page features a collection of Decoding the Code articles from the newsletter, written by our experienced architects and engineers.

Decoding the Code answers code questions received from clients or that have emerged on projects. Simple code questions may be submitted for possible inclusion in a future article. Complex code review services also are available to clients as part of or independent from larger projects. 

To share your question, call 319-754-8415, or use the contact form to reach licensed architect Ellen McCulley.  For more about our code review, Building Information Modeling and other design-related services, visit Nelson Design, Inc.

Contact us today!

Our code review experts serve clients with Fairness and Honesty, Quality Workmanship and Service Second to None, ensuring requirements are met while avoiding unnecessary and costly over-application of regulations. Fill out the contact form or call 319-754-8415 to connect with Nelson Design, Inc.

Allowed industrial ladder use varies by function
Allowed industrial ladder use varies by function

International Building Code only allows ladders to be used in locations that are unoccupied and do not require a means of egress.

Read More...

Accessibility updates in hospital remodeling
Accessibility updates in hospital remodeling

Alteration levels dictate the degree to which modifications for accessibility must be made during renovation projects.

Read More...

Building Code application in existing buildings
Building Code application in existing buildings

It is crucial to know before you build which codes are applicable so they may be properly applied to your project or facility.

Read More...

Exterior wall assemblies must pass NFPA test
Exterior wall assemblies must pass NFPA test

Flammable exterior cladding can cause flames to spread quickly from the outside. Decoding the Code takes a look at how rules vary by use, material.

Read More...

Paint booth/kitchen code for manufacturing
Paint booth/kitchen code for manufacturing

Nelson Design, Inc., architect Ellen McCulley reviews International Building Code requirements for industrial paint facilities.

Read More...

Egress locks in patient care areas: What's OK?
Egress locks in patient care areas: What's OK?

Prevent elopement from healthcare facilities while assuring fire and life safety by following building code requirements.

Read More...

Damper rules for wall openings, penetrations
Damper rules for wall openings, penetrations

Part 3 of our Decoding the Code series on rules for fire and smoke walls/barriers reviews requirements for wall openings and penetrations.

Read More...

Does my building need a sprinkler system? Part 2
Does my building need a sprinkler system? Part 2

'Total fire area' and space usage among factors determining whether fire sprinklers are required in industrial facilities.

Read More...

Are fire sprinklers required? It’s complicated
Are fire sprinklers required? It’s complicated

Occupancy, construction type, footprint and height are key factors in sprinkler regulations for industrial facilities

Read More...

Wall-opening rules for fire-rated construction
Wall-opening rules for fire-rated construction

Architect Ellen McCulley reviews IBC and NFPA 101 Life Safety Code fire protection standards for doors and other openings in healthcare facilities.

Read More...

Q: What are the requirements for fire smoke walls?
Q: What are the requirements for fire smoke walls?

Comparing the requirements of International Building Code, NFPA 101 Life Safety Code for fire-rated construction in healthcare facilities

Read More...

Thermal barriers for spray-foam insulation
Thermal barriers for spray-foam insulation

Complex code requirements govern whether a thermal barrier is necessary in spaces with exposed spray-foam insulation in industrial or warehouse facilities.

Read More...

Rules for emergency eye wash, shower stations
Rules for emergency eye wash, shower stations

Nelson Design, Inc., architect Ellen McCulley, NCARB, provides an overview of requirements for placement of emergency wash stations in hazardous settings.

Read More...

Proper Anchorage prevents deaths from falls
Proper Anchorage prevents deaths from falls

Tim Seibert, P.E., president of Carl A. Nelson & Company, reviews standards for proper Anchorages in manufacturing environments to prevent fatal falls

Read More...

Use, egress, fire protection affect suite size in health facilities
Use, egress, fire protection affect suite size in health facilities

Architect Ellen McCulley, AIA, LEED AP, NCARB, of Nelson Design, Inc., addresses issues affecting size limits on suite sizes in healthcare facilities.

Read More...

Decoding the Code: Applying Energy Code
Decoding the Code: Applying Energy Code

A review of determining the applicability of energy code based on location, construction type, by Nelson Design, Inc., Architect Ellen McCulley.

Read More...

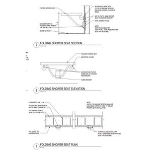
Durability, ADA are shower seat considerations
Durability, ADA are shower seat considerations

In Decoding the Code, Architect Ellen McCulley discusses code considerations for shower seat installation in industrial and institutional settings.

Read More...

Decoding the Code: Know which codes apply
Decoding the Code: Know which codes apply

Code study is an important part of pre-construction. Understanding what code applies to a building project is just as important.

Read More...

Decoding the Code: Code Review as Value Engineering
Decoding the Code: Code Review as Value Engineering

Nelson Design, Inc., architect Ellen McCulley, AIA, LEED AP, NCARB, discusses the cost benefits of code review during pre-construction.

Read More...

Decoding the Code: Rules for Remodeling
Decoding the Code: Rules for Remodeling

In Decoding the Code, Nelson Design, Inc., architect Cindy Larson discusses International Building Code requirements for remodeling, and how application of the rules varies depending on the type of building, or the scale of changes being made.

Read More...

Decoding the Code: Combustible Storage 102
Decoding the Code: Combustible Storage 102

Nelson Design, Inc., architect Ellen McCulley, AIA, LEED AP, NCARB, resumes her discussion of International Fire Code rules for storage of high-piled combustibles.

Read More...

Decoding the Code: Therapy/Rec pools
Decoding the Code: Therapy/Rec pools

Carl A. Nelson & Company's Dan Culp discusses regulatory guidelines for pools related to therapy-only versus therapy and recreational use.

Read More...

Decoding the Code: High-Piled Storage
Decoding the Code: High-Piled Storage

Nelson Design Services, Inc., architect Ellen McCulley, AIA, LEED AP, NCARB, offers a guide to rules for high-piled combustibles storage.

Read More...

ADA Compliance in Industrial Facilities: Know the Facts
ADA Compliance in Industrial Facilities: Know the Facts

Addressing misconceptions about the application of accessibility requirements beyond commonly understood "public accommodations."

Read More...

USP 800 - Are You Ready?
USP 800 - Are You Ready?

A discussion of USP 800 requirements for handling hazardous drugs in healthcare settings.

Read More...

Hazardous Materials 103: High Hazard Occupancies
Hazardous Materials 103: High Hazard Occupancies

Part 3 of our Decoding the Code series on hazardous materials storage and handling.

Read More...

Infection Control Risk Assessment
Infection Control Risk Assessment

A review of infection control best practices during construction activities in operating hospital settings.

Read More...

Life Safety Drawings
Life Safety Drawings

A review of requirements for life safety drawings maintained by healthcare organizations to meet CMS, state, Joint Commission standards.

Read More...

Hazardous Materials 102: Control Areas
Hazardous Materials 102: Control Areas

Part 2 of our Decoding the Code series on hazardous materials storage and handling.

Read More...

Hazardous Materials 101
Hazardous Materials 101

Part 1 of our Decoding the Code series on hazardous materials storage and handling.

Read More...

Copper Ally
Copper Ally

Could copper be your new friend in the fight for infection control?

Read More...

Adding Wood Framed Structures to Metal Buildings
Adding Wood Framed Structures to Metal Buildings

Proceed with caution when adding a wood framed structure to a metal building. Such modifications carry significant code compliance implications.

Read More...